Reparaturanfragen
03741 703-111

Gewerbe

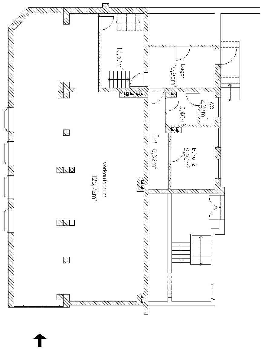
Dittrichplatz 9
08523 Plauen / West
Wohnungsbaugesellschaft Plauen mbH
Telefon:
Telefax:
03741 703-120
Hotline:
700,48 €
Grundmiete
280,19 €
Nebenkosten
1.278,37 €
Miete zzgl. Heizkosten
175,12 m²
Fläche
3
Zimmer
EG
Etage

Ausstattung

Dusche
Wanne
Balkon
Aufzug
altersgerecht
barrierearm

Energieausweis

Energiekennwert:
118,00 kWh/(m²*a)
Energieklasse:
D
Ausweisart:
Verbrauchsausweis
Heizungsart:
Fernwärme
Baujahr:
1955

Für die Richtigkeit und Vollständigkeit der Angaben zur Wohnung übernehmen wir keine Haftung, da wir diese Angaben vom Eigentümer übernommen haben. Einen Zwischenverkauf behalten wir uns vor.